Veteran Universal Home Design

Spring Semester 2025

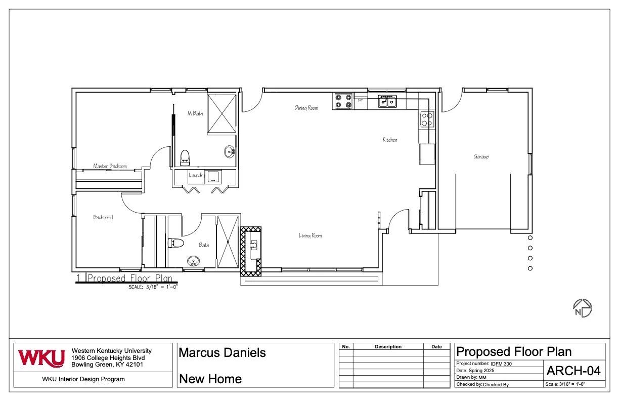
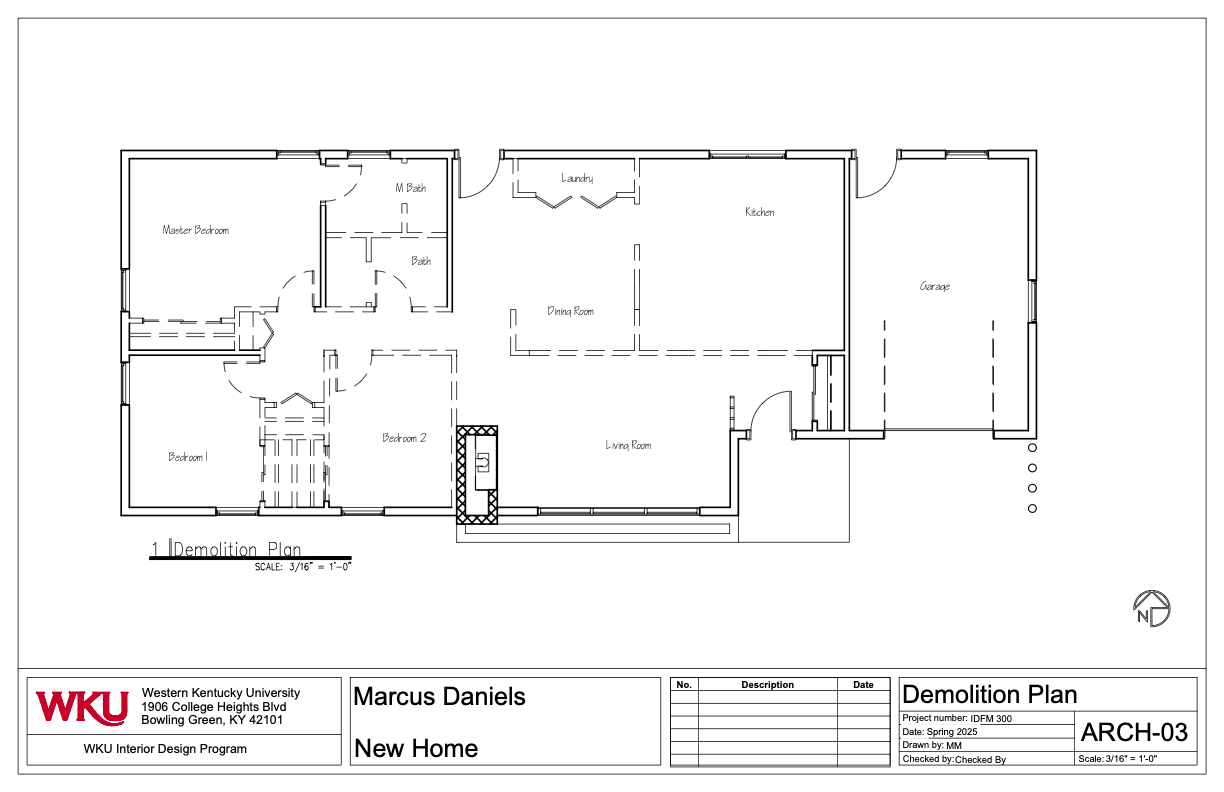
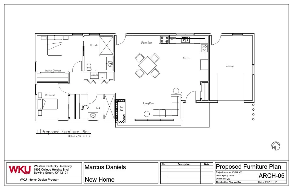
This project showcases my ability to design with accessibility at the forefront, adhering to ADA guidelines to create a safe and functional home for a disabled veteran. Working from an existing residential shell, I developed a comprehensive demolition plan and reconfigured the layout to support the veterans daily living needs. This project highlights my understanding of universal design principles and my commitment to creating spaces that prioritize safety, comfort, and inclusivity.

Scroll down to see my original pitch deck which outlines the project plan, the final Photoshop presentation board, and the complete construction documents.

To see my next project, scroll to the bottom of the page and click the arrow.

Next
Next

The Poore Residence