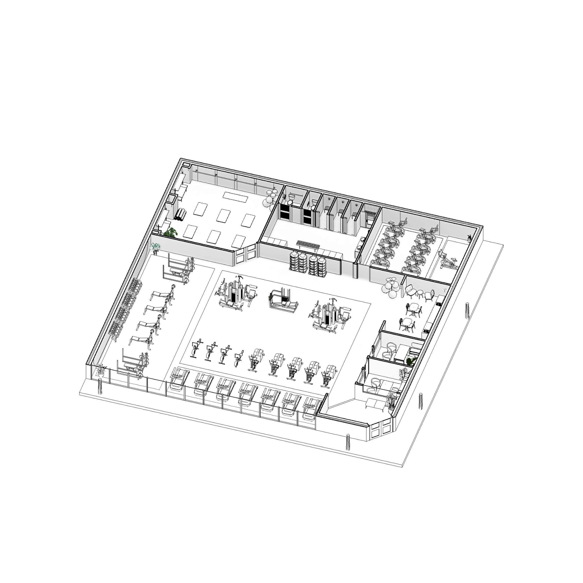
A look into my Revit Projects.

Revit was the second software I learned during my college career. Through these projects, I developed skills in 3D modeling, documentation, and coordinating architectural elements within a cohesive digital environment.This selection highlights my strongest Revit projects beginning with the earliest projects to most recent projects.

Click on each project to see a demonstration of my precision, creativity, and attention to detail in digital modeling and design documentation.