Root & Rise Gym

Fall Semester 2025

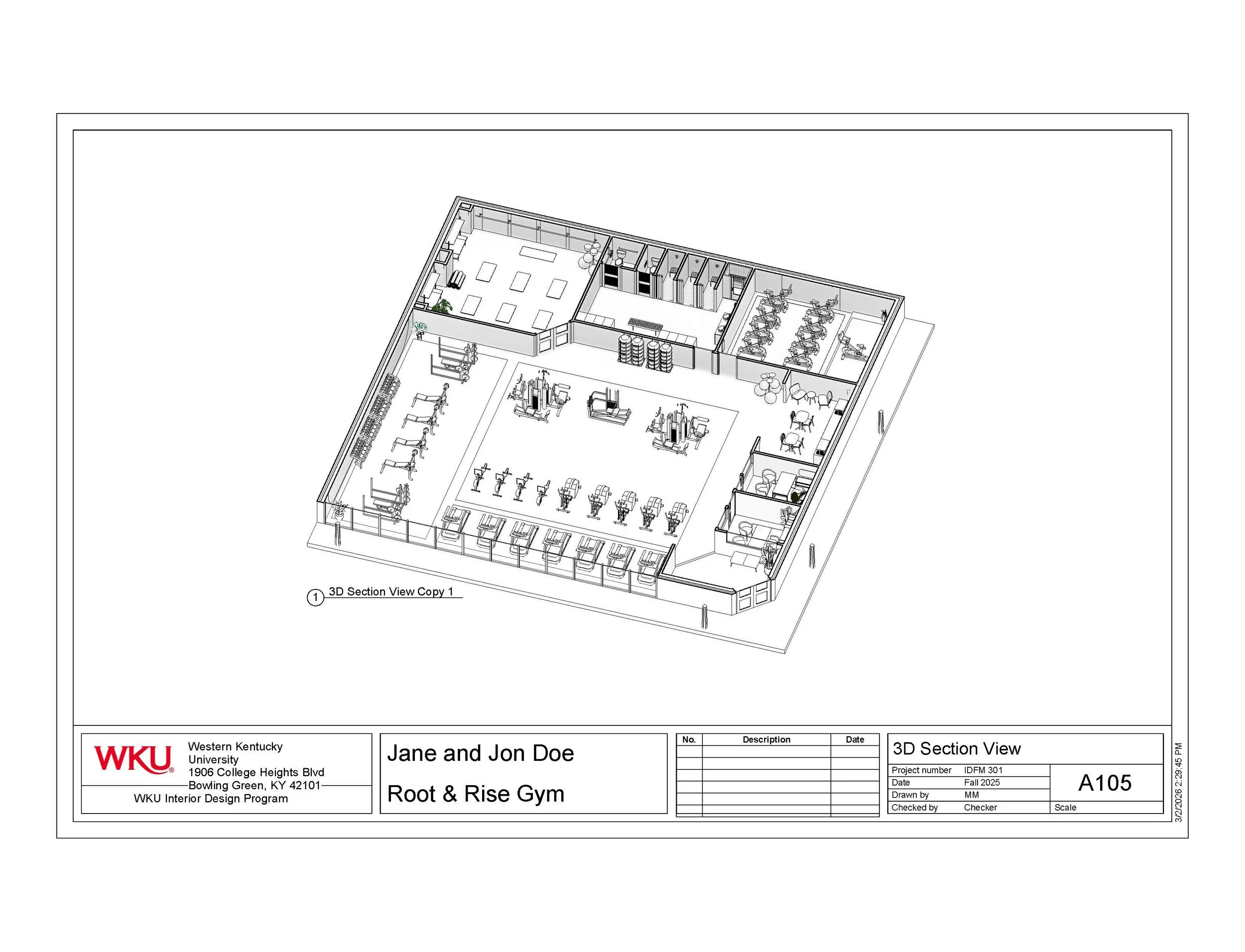
Root and Rise Gym is my vision for a women’s wellness fitness space in Boulder, Colorado. The gym is designed around the dual themes of strength and renewal. The environment supports both physical empowerment and mental restoration, creating a balanced space where resilience can take root and confidence can rise.

Scroll down to see the presentation board, final renderings, and construction documents.

To see my next project, scroll to the bottom of the page and click the arrow.

Previous
Previous

Dough Re Mi Cafe

Next
Next

The Crooked Nook Cafe